諏訪日立ビル

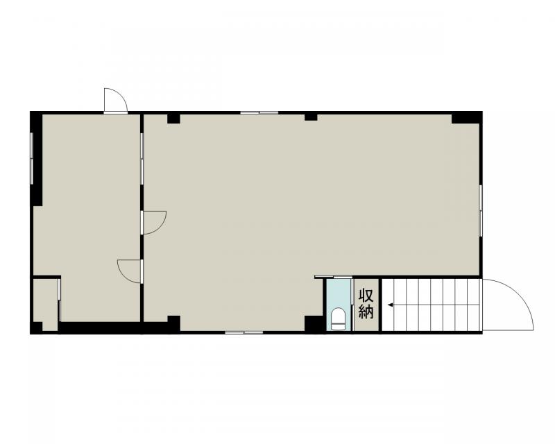
  • 間取り図
1 / 0

諏訪日立ビル

茅野市ちの
店舗

165,000

めやす賃料175,313

費用詳細

月々の費用
家賃
165,000
契約時費用
礼金
150,000
敷金
300,000
仲介料
165,000
保険料
要加入
保証料
82,500
更新時費用
更新料
-
更新手数料
82,500
保険料
要加入
めやす賃料175,313

物件詳細

所在地
茅野市ちの
間取り
フロア
専有面積
106.56㎡ 32.17坪
1階 / 5階建て
構造
鉄骨造
駐車場
0台駐車可能
築年月
1977年7月(48年9ヶ月)
入居可能日
即入居可
取引態様
媒介
せ番号:04060-1F 情報更新:2026/4/29 現在の情報です。